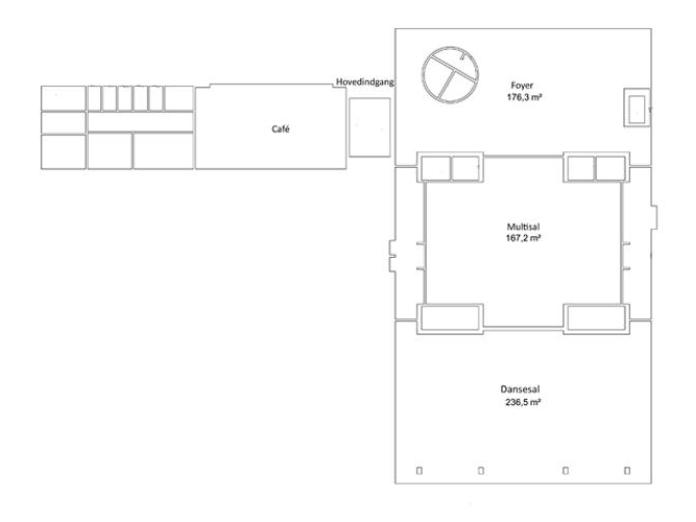
Find rundt i Prøvehallen
Du kan komme ind i Prøvehallen via hovedindgangen imellem de to bygninger. Indgangen fører ind i Pørvehallens foyer, hvor du nemt kan komme videre til de andre etager. I oversigen nedenunder ser du en plantegning og en beskrivelse af hver etage.
Stuen

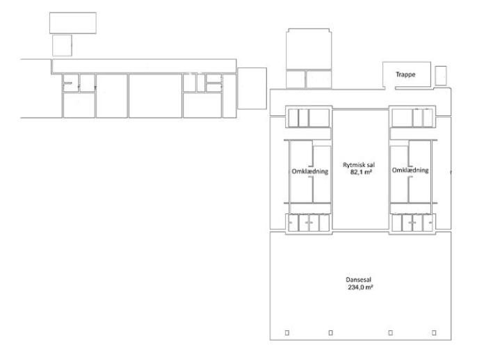
Første sal

2. sal

Kontakt
Prøvehallen
Porcelænstorvet 4
2500
Valby